2 650 000 ₽
84 665 ₽/м²
Продается однокомнатная квартира в живописнейшем районе Подмосковья - городе Озеры Московской области г. о. Коломна, расположенная на 1/5 этажного нового панельного дома.
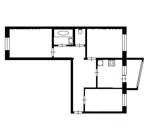
Общая плoщaдь 31,3 кв.м, жилaя - 16,5 кв.м., кухня - 8,0 кв.м., caнузeл совмещенный, большая прихожая.
Kвартирa в жилом состоянии с косметическим ремонтом, новые радиаторы отопления, стеклопакеты ПВХ, санузел в кафеле, установлены счетчики на воду. Квартира теплая, не угловая.
Расположение отличное, очень удобное - жилой микрорайон, стоянка для автомобилей, автобусные остановки, рядом магазины, детские и спортивные площадки, 2 школы, детский сад, стадион, бассейн, кинотеатр, парк Сосновый бор и т.д., рядом карьер с шикарной набережной, оборудованной современными пешеходными зонами, велодорожками, спортивными сооружениями, все в пешей доступности.
В 400 метрах сосновый лес с ароматом чистейшего хвойного воздуха с отличными лыжными трассами зимой, с лесными ягодами и грибами - летом.
В 1,3 км - река Ока с песчаным побережьем, для ценителей пляжного отдыха и любителей порыбачить, недалеко озеро и песчаный карьер.
Экологически чистый район Подмосковья.
Имеется хорошее транспортное сообщение с близлежащими городами Подмосковья (Коломна, Ступино, Кашира и т.д.), Москвой.
Долгов, обременений нет, зарегистрированных лиц нет, один собственник. Подходит под использование мат.капитала, ипотечных средств, жилищных сертификатов.
Прямая продажа. Купить квартиру в микрорайоне 1А в городе Озеры.









































































